Pasar al contenido principal

Cuatro estrategias arquitectónicas para aumentar la inclusión en los hogares: el caso de João Pessoa

Desarrollo Urbano y Vivienda Cuatro estrategias arquitectónicas para aumentar la inclusión en los hogares: el caso de João Pessoa Descubre cuatro estrategias arquitectónicas llevadas a cabo para garantizar una mayor inclusión y diversidad en las viviendas construidas en Brasil Mar 9, 2023
Inclusión hogares Joao Pessoa

Este artículo se encuentra también disponible enPortugués

En el primer artículo de esta serie sobre arquitectura de género en vivienda de interés social, y coincidiendo con la celebración del Mes de la Mujer por parte del Banco Interamericano de Desarrollo (BID), presentamos el proyecto de construcción de tres conjuntos de viviendas de interés social con enfoque de género en el municipio brasileño de João Pessoa.

Hoy dedicaremos esta entrada de blog a compartir cuatro estrategias arquitectónicas llevadas a cabo dentro del Programa João Pessoa Sustentável, desarrolladas con financiación del BID, para garantizar una mayor inclusión y diversidad en las viviendas construidas en el barrio Complexo Beira Rio de ese municipio. !Aquí van las cuatro estrategias!

1. Seguridad

Una estrategia importante utilizada para garantizar que los espacios de vivienda sean seguros e inclusivos se basa en el concepto creado por la urbanista y periodista Jane Jacobs sobre "los ojos de la calle". Este concepto enfatiza la importancia de que las personas sean los propios guardias de los espacios públicos para que puedan ver y ser vistos en entornos comunitarios, de modo que éstos se vuelvan más seguros de forma natural.

Los edificios de viviendas del Programa João Pessoa se ubicaron en emplazamientos estratégicos para que los espacios en común sean siempre vistos por los residentes dentro de sus hogares. Asimismo, las fachadas de los bloques de viviendas se construirán con materiales permeables que permitirán ver los espacios públicos y comunitarios desde dentro de las viviendas, sin dejar ningún área "invisible". También forma parte del plan la colocación de bancos y alumbrados públicos eficiente en los espacios comunes y entre los bloques de apartamentos. Estos elementos suponen una gran contribución a la seguridad en las urbanizaciones.

Disposición de bloques y zonas comunes y fachadas permeables.

2. Funcionalidad

Otra estrategia importante es la funcionalidad, que puede darse atendiendo a dos criterios:

- Diversidad de tipologías:

El diseño de los apartamentos tiene tres tipos de plantas que varían en el número de habitaciones, con opciones de uno, dos o tres dormitorios, con el fin de ofrecer configuraciones de vivienda para las diferentes necesidades de las familias reasentadas.

-Modularidad:

Para garantizar que los apartamentos se adapten a las demandas diarias de las familias, las plantas también son moduladas y flexibles, y permiten el cambio de las funciones de las habitaciones según la necesidad, sin perder la característica residencial de la villa. Una posibilidad interesante en relación con esta estrategia es la viabilidad de los espacios de trabajo dentro de la vivienda, como se presenta en el plano del apartamento abajo:

Dos dormitorios planta con habitación neutra

3. Usos mixtos

El proyecto de construcción de tres bloques de vivienda prevé la construcción de otros edificios para facilitar las tareas relacionadas con el cuidado familiar, con el fin de que permitan un uso mixto. Los espacios educativos, de salud, culturales o comerciales son esenciales para la vida cotidiana. Contribuyen a mejorar la vida del barrio y a aumentar el movimiento en las calles y en las entradas del condominio por parte de residentes y visitantes en diferentes momentos del día y de la noche. De esta manera se reducen la sensación de inseguridad y las oportunidades de asalto o agresión. Los edificios residenciales también se benefician de albergar centros de atención para ancianos, espacios de recreación para niños, jóvenes, mujeres y tiendas, entre otros. Además, cuantas más ubicaciones de uso mixto haya en el barrio, menor será el desplazamiento de residentes para realizar tareas diarias de cuidado.

En este sentido, en el Conjunto Beira Rio se planifican edificios para: guardería, cooperativa de recicladores, ONG CEIFA, Centro de Referencia de la Juventud, Centro de Referencia para la Asistencia Social (CRAS), Centro de Referencia de Ciudadanía (CRC) y cocina comunitaria. Además, se propusieron espacios sociales para reuniones, fiestas y actividades de ocio.

Imágenes del proyecto: (1) guardería, (2) cooperativa de recicladores, ONG CEIFA, (3) centro de referencia juvenil y (4) equipamiento social (CRAS, CRC, cocina comunitaria

4- Sostenibilidad

El proyecto tendrá formas de garantizar la sostenibilidad ambiental y económica, una preocupación muy común en el contexto de la vivienda de interés social en Brasil. Esto es así porque las familias que ocuparán estos apartamentos serán reasentadas desde casas que se encuentran ahora en áreas de riesgo, principalmente amenazadas por inundaciones. La mayoría de estas familias no pagan actualmente condominio, y en algunos casos tampoco pagan agua o energía. Sin embargo, el cambio no puede empobrecer a las familias con nuevas cargas financieras, ya que, por el contrario, su objetivo es mejorar sus condiciones de vida. Por este motivo, se desarrollaron dos frentes de trabajo sobre el tema de la sostenibilidad:

  • La reducción de los costos de energía y agua (tanto individuales como en condominios) a través de técnicas de construcción ecológica;
  • El diseño de espacios comerciales cuyas rentas puedan cubrir los gastos de mantenimiento de los condominios.

- Sostenibilidad Ambiental

El proyecto incluye conceptos de arquitectura bioclimática, tales como:

  • Orientación correcta del edificio en relación con la trayectoria solar y los vientos predominantes.
  • Planificación y posicionamiento de fachadas y ambientes de mayor permanencia de los usuarios de acuerdo con el clima de la ciudad de João Pessoa.
  • Uso de espacios abiertos y semiabiertos y aberturas de fachadas en relación con la llegada de vientos, lo que permiten la ventilación cruzada dentro del edificio.

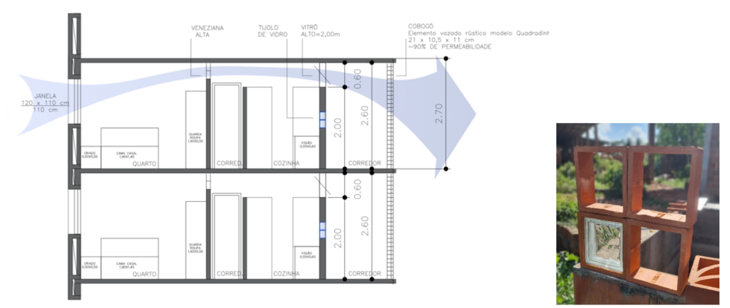
Además, las fachadas cercanas a los pasillos estarán compuestas estratégicamente por un material local visualmente permeable (cobogó), que permite la ventilación e iluminación natural de los espacios internos, tal y como se presenta en el corte esquemático abajo.

Pasaje de ventilación natural en los apartamentos y el cobogó de las fachadas.

Las condiciones de sostenibilidad ambiental y reducción de recursos del proyecto fueron evaluadas durante la fase de diseño mediante el sistema EDGE, que certifica edificios que redujeron el consumo de energía, agua y energía incorporada en los materiales de construcción en un 20% o más. Con el resultado, utilizando la herramienta de cálculo vigente en el momento de la contratación, el proyecto del Complexo Beira Rio logró ahorros del 66,9% de energía, 25,8% de agua y 38,7% de energía incorporada en los materiales de construcción con respecto a una construcción convencional. Estos datos demuestran el bajo impacto ambiental del proyecto.

- Sostenibilidad Financiera

El proyecto incluye la construcción de áreas comerciales en los espacios de la planta baja de los edificios, así como un edificio exclusivamente comercial a orillas de la Avenida Beira Rio, que se podrá alquilar. Con esta iniciativa se pretende utilizar el valor del alquiler para reducir los costos del condominio, además de promover la prestación de servicios más cerca de los residentes, que también pueden trabajar cerca de sus hogares.

Espacios comerciales para la generación de ingresos en el complejo habitacional

Acceda a la presentación del coordinador de desarrollo urbano de la Unidad de Implementación del Programa João Pessoa Sustentável, donde se describen con más detalle estas innovaciones del proyecto de Viviendas de Interés Social del Complexo Beira Rio:

https://youtu.be/iVrf0Cvw3Sk

João Pessoa, un modelo de arquitectura inclusiva para la región

Estas cuatro estrategias pueden ser aplicables a cualquier otro proyecto habitacional de la región. Confiamos en que así sea y que el modelo de las urbanizaciones del Complexo Beira Rio, que pone la calidad de vida de sus futuros habitantes en el centro de la toma de decisiones, sea replicable en muchos proyectos futuros. Estas urbanizaciones en João Pessoa son una realidad muy cercana, pues las obras están programadas para comenzar a finales de este año. ¡Síguenos en nuestras redes sociales para conocer los próximos pasos!

Nota: La municipalidad João Pessoa ha cedido al BID el uso de las imágenes para su uso en este artículo

Contenido relacionado:

https://blogs.iadb.org/ciudades-sostenibles/es/arquitectura-genero-vivienda-interes-social-joao-pessoa/

Para obtener más información sobre inclusión de género y la diversidad en las ciudades, le invitamos a leer la Guía práctica e interseccional para ciudades más inclusivas, así como escuchar el Podcast: Género y Ciudades (solo disponible en portugués).

Jump back to top